ABOUT
CONCEPT
1970年代の中央線文化が華やかし頃、73年6月に「ライブスポット西荻窪ロフト」はオープンしました。広さはわずか15坪。翌74年、今度は隣の町に「荻窪ロフト」(35坪) をオープンさせます。ちょうど日本のロック、サブカルチャー創成期と重なり、ライブハウス「ロフト」は自然とこれらの一角を担うことになりました。80年に西荻店と荻窪店は幕を閉じましたが、この時期私たちロフトは、70年代の中央線文化に多くの足跡を残したと自負しています。
76年に新宿ロフト、91年に下北沢シェルター、さらに95年にロフトプラスワン、04年にネイキッドロフトを立ち上げた私たちは、もう一度ライブハウス「ロフト」の原点に立ち返りたいと考え、再び中央線沿線で新たなライブハウス「Asagaya / Loft A」を始動します。
ひとことで言えば、Asagaya / Loft A はコミュニケーションを主体とした「空間」です。ライブでは、音楽や映像、演劇やオタクなど、様々なジャンルの知識経験を持った人(主催者) を招きます。主催者(ゲスト、司会者、スタッフ含め) はその日のテーマを決めて表現し、それを聞きに来たお客さんとフェイス・トゥ・フェイスのコミュニケーションをすることを趣旨とします。
町に息づいている何か、ありふれた風景、消し去られようとしている真実、発言を封じられている人々、文化、芸術、人生──「人間」というものを根本のテーマとして、ありとあらゆる世界の対話の輪が広がって行く「空間」にしたいと思っています。
スタイルはトークライブ・上映会・アコースティックライブ・演劇など何でもオッケー。気軽にお店に相談にいらしてください。 料金・スタイル・出演者・構成等相談しながら一緒に創っていきましょう。
店舗概要
| 店舗名 | Asagaya / Loft A 阿佐ヶ谷ロフトA |
|---|---|
| 住所 | 〒166-0004 杉並区阿佐谷南1-36-16-B1F |
| TEL | 03-5929-3445 |
| FAX | 03-5929-3446 |
| キャパシティ | |
| 営業形態 | EVENT SPACE BAR SPACE(20:00〜24:00。深夜イベント or バーライブがある日はAM4:00まで営業!) |
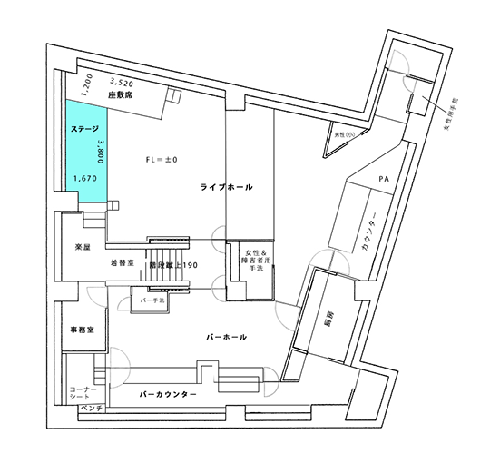
フロアマップ
[クリックで拡大]
ブッキング
企画持ち込み・出演希望の方はご来店・お電話・FAX・メールにてお問合わせください。
TEL 03-5929-3445 / FAX 03-5929-3446
E-mail lofta@loft-prj.co.jp
担当:齋藤まで
料金システム
「チャージ(入場料金)とお客様のご飲食代を含めた総売上」からご出演料を算出する方式を取らせて頂いており、バック率は売り上げにより変動します。詳しくはお問い合わせください。
☆出演者とお店で一緒にイベントを創り発信していくお店ですので、箱貸しは基本的に行っていません。予算・動員目標・内容等打合せを重ね、共にイベントの成功を目指します。
音楽ライブ
基本的にアコースティック形態でお願いしています。
ドラムは当店常設のミニドラム(pearl リズムトラベラー)のみ使用可。
(ジャンベ、カホン等パーカッション類は音量により可。)
ギター・ベースアンプ、キーボード(YAMAHA/CP33)常備(無料)。
PA・照明設備完備。専門スタッフもいます。
持ち込み楽器については事前にご相談ください。
機材リストはこちら
料金システム
フリートーク、対談、ネタライブ、上映会、オフ会など、様々な形式に対応します。
サブカルから政治まで幅広いテーマでイベントを募集しています。
飲食をしながらイベントを楽しむスペースです。
プロジェクター、DVD、VHS、PC画面、手元カメラの映像をスクリーンに映しながらイベントを進行することができます。
PA・照明設備完備。専門スタッフもいます。
機材リストはこちら
機材リスト
音響機材リスト
| 機材 | メーカー | 名称 | 数 | 仕様 |
|---|---|---|---|---|
| ● FOH SPEAKER SYSTEM | ||||
| MAIN SPEAKER | YAMAHA | DXR10 | 2 | 700W 客席前側 |
| YAMAHA | DXR10 | 2 | 700W 客席後側 | |
| CONSOLE | YAMAHA | TF1 | 1 | 16フェーダー 1マスター |
| INPUT モノラル16CH(最大32CH) ステレオ2CH(SLOTカードにて拡張可能) OUTPUT モノラル8CH ステレオ6CH |
||||
| DISTRIBUTOR | FURMAN | M-8L | 1 | |
| CD PLAYER | TASCOM | CD200 | 2 | |
| SUBMIXER | BEHRINGER | MX400 | 1 | 4CHIN(ステレオ) 1CHOUT(モノ) |
| ● STAGE MONITOR SPEAKER SYSTEM | ||||
| MONITOR SPEAKER | YAMAHA | DXR8 | 3 | 700w ステージ吊り×2・予備×1 |
| ● MICROPHONES/DIRECTBOX | ||||
| DynamicMIC | SHURE | SM58 | 10 | |
| SHURE | SM57 | 2 | ||
| W/LMIC | SHURE | BLX88/SM58 | 2 | |
| DIRECT BOX | ART | PDB | 4 | PASSIVE |
| LONG BOOM | K&M | 21020 | 4 | |
| SHORT BOOM | K&M | 25900 | 3 | |
| 卓上スタンド | K&M | 233 | 3 | |
| ● DJsystem | ||||
| MIXER | ALLEN&HEATH | XONE 23 | 1 | |
| PIONEER | DJM850K | 1 | ||
| CDJ | PIONEER | CDJ 100s | 2 | |
| PIONEER | CDJ850 | 2 | ||
| TURNTABLE | TECKNICS | SL-1200MK5S | 2 | |
| ● BARsystem | ||||
| POWERAMP | DENON | PMA-390 AE | 1 | |
| SPEAKER | BOSE | 251B | 4 | 100W |
| CD PLAYER | DENON | DCD-755AESP | 1 | |
| 機材 | メーカー | 名称 | 数 | 仕様 |
|---|---|---|---|---|
| ● 楽器類 | ||||
| Gtr AMP | FENDER | FRONTMAN25R | 1 | |
| ROLAND | JC120 | 1 | ||
| Ba AMP | ORANGE | CRUSH35B | 1 | |
| 譜面台 | K&M | 11888B | 3 | 他×2 |
| ギタースタンド | HERCULES | GS415B | 2 | 他×2 |
| KEYBOARD | YAMAHA | CP33 | 1 | |
| KEYBOARDSTAND | 2 | X型×1 四つ足×1 | ||
| ● ミニドラムセット | ||||
| PEARL | Rhythm Traveler | |||
| バスドラム | w/ProToneクリアヘッド | 1 | 14" x 13" | |
| タム | w/ProToneクリアヘッド | 1 | 12"10"8" | |
| スネアドラム | w/ProToneクリアヘッド | 1 | 10" | |
| CRASHシンバル | 1 | 13" | ||
| H/Hシンバル | AA | 1 | 12"(top bottom各1) | |
| H/Hスタンド | 1 | |||
| ドラムペダル | 1 | |||
| スネアスタンド | 1 | |||
| シンバルスタンド | 1 | |||
照明機材リスト
| 機材 | メーカー | 名称 | 数 | 仕様 |
|---|---|---|---|---|
| 調光ユニット | LITEPUTER | DMX | 1 | 1口 2KW 12ch |
| 調光卓 | LSC | MINIM | 1 | 12/24ch |
| 灯体 | PAR56 300W/M 黒ロング | 11 | ||
| PAR30 75W 黒ロング | 4 |
映像機材リスト
| 機材 | メーカー | 名称 | 数 | 仕様 |
|---|---|---|---|---|
| ● Booth System | ||||
| 撮影用カメラ | VICTOR | GR-D650 | 1 | |
| DVD・HDDデッキ | TOSHIBA | VARDIA RD-E301 | 1 | |
| VHS・DVDデッキ | SHARP | DV-NC750 | 1 | |
| テレビモニター | d:sign | d:1532GJ | 1 | W30.4cm×H22.8cm |
| 分配機 | MASPRO | VSP4 | 1 | |
| ● Stage System | ||||
| AVセレクター | VICTOR | JX-61 | 1 | |
| DVDデッキ | TOSHIBA | SD-290J | 1 | |
| VHS・DVDデッキ | SHARP | DV-NC750 | 1 | |
| テレビモニター | d:sign | d:1532GJ | 1 | W30.4cm×H22.8cm |
| 分配機 | MASPRO | VSP4 | 1 | |
| プロジェクター | NEC | ViewLight NP-M350XJL | 1 | |
| 電動スクリーン | 1 | W167cm×H170cm | ||
キャンペーン
阿佐ヶ谷ロフトA社会科見学 実施中!!

中高生は200円で阿佐ヶ谷ロフトAを見学できます!
詳しくは下の注意書きを読んで、気軽にご参加ください。
※中学・高校在学中の方限定。
※受付にて学生証を提示してください。
※ソフトドリンク代200円が必要です。
※アルコール類の提供は一切いたしません。
※平日はイベント開場時間から20:30まで。
※土日祝日は14:00から20:30まで。
※BARホールでの見学となります。イベントが行われているライブホールへ入場するには別途チケット代等が必要です。
※18歳未満入場禁止のイベント開催時やBARイベント開催時は利用できません。
問い合わせ先
03-5929-3445(阿佐ヶ谷ロフトA)
lofta@loft-prj.co.jp
わからないことなどはお気軽にどうぞ!
阿佐ヶ谷ロフトA 10周年記念ページ(2017年)

ロゴデータ
Asagaya / Loft A ロゴ: aiデータ








